周邊配套:交通:16號線六聯村站約600米左右,19號地鐵站!地鐵:地鐵16號線六聯村站(22年通車)無縫對接本項目,與19號線(規劃中)雙軌
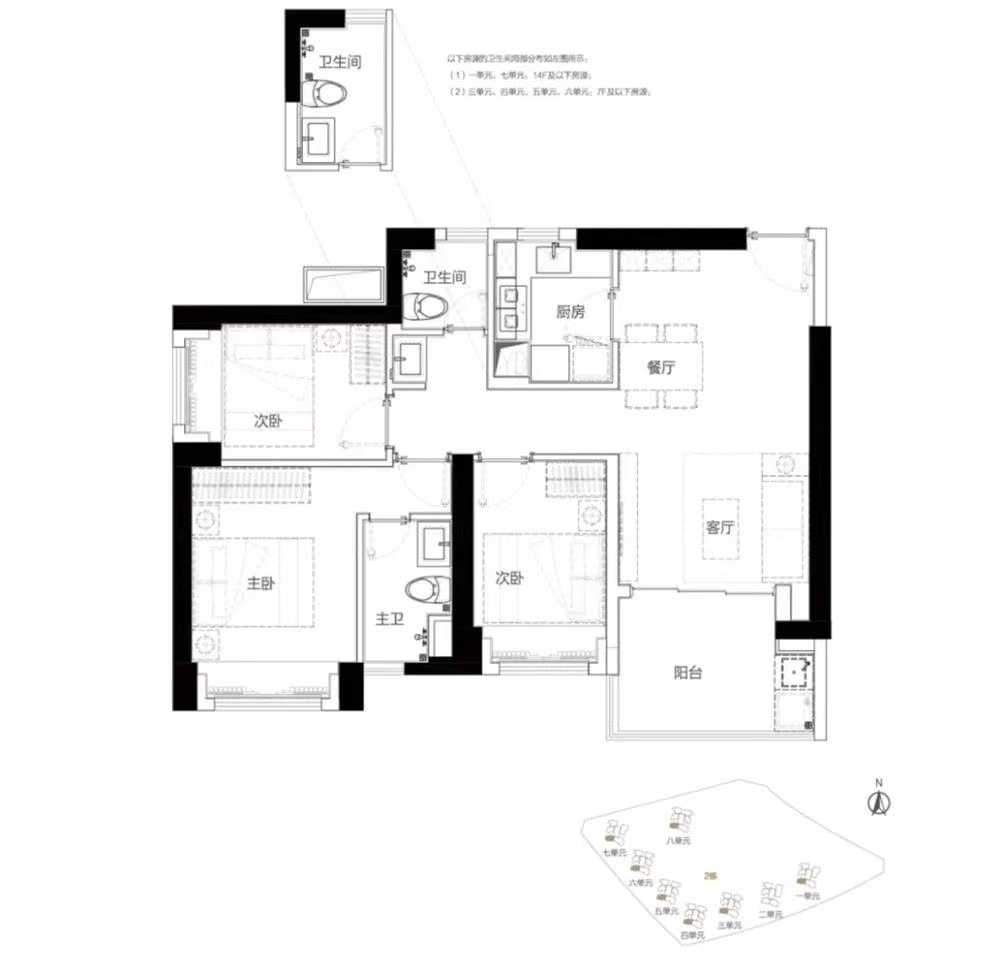
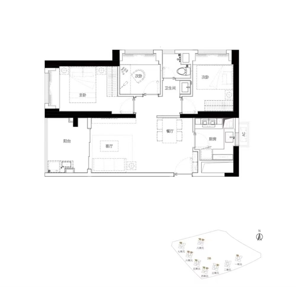
房屋戶型:1室 、2室 、3室 、
住宅類型:
區域:深圳市坪山區龍坪路與金豐路交匯處東南角處
最新開盤:2021-07-31
立即咨詢
24小時咨詢熱線:13267179661
周邊配套:
交通:16號線六聯村站約600米左右,19號地鐵站!
地鐵:地鐵16號線六聯村站(22年通車)無縫對接本項目,與19號線(規劃中)雙軌交匯,地鐵14號快線(22年通車),13站直抵福田;
高鐵:約1.5公里坪山高鐵站,廈深高鐵,深汕高鐵
云巴:比亞迪云巴(建設中),暢行坪山生活圈;
高速:坪山大道、坪鹽隧道(建設中)、南坪快速路三期、東部過境高速(建設中)、外環高速(建設中),通達深圳全市各大區域。
教育:周邊坪山實驗學校、飛西學校兩所名校 家門口的九年一貫制教育,項目自帶6班幼兒園
坪山實驗學校:一街之隔九年一貫制公辦學校,連續多年中考成績位居前列;
飛西學校(建設中):政府規劃打造高品質國際化九年一貫制學校;
商業:擁益田假日世界、坪山天虹等成熟商圈,締造家門口的萬象主場。一路之隔佳華領悅4.5萬㎡MALL 一站式滿足休閑購物。自帶社區底商!
休閑:項目地處坪山中心片區,毗鄰約10億級坪山文化中芯,享受六城一館、中心公園等豐富的人文自然配套;下樓即享約48萬㎡半月環公園 搶占深圳又一“市民中心”



